two car garage conversion floor plan
1 Car Garage Conversion Simply Additions
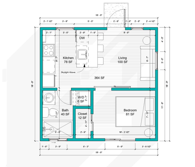
Floorplan For 2 Car Garage Conversion
Cottage Build Your Custom Adu In La San Diego And The Bay Area
Garage Conversion The Arledge Plan
Garage Conversion 101 How To Turn A Garage Into Living Space Maxable
Convert Garage To Living Space How To Convert A Garage Into A Room
Thoughts On Floorplan With Garage Conversion
Cottage Build Your Custom Adu In La San Diego And The Bay Area
Cottage Build Your Custom Adu In La San Diego And The Bay Area
Garage Apartment Plans Garage Living Plans
Before After From Garage To Airbnb Apartment Therapy
Distinctive Garages Design And Construction By Detail Homes
2022 Cost To Remodel A Garage Garage Conversion Cost
51 Garage Conversion Ideas To Convert Your Living Space
21 Garage Conversion Ideas To Enhance Your Space Real Homes
18 Garage Conversion Ideas To Improve Your Home
1 Car Garage Conversion Simply Additions
Garage Conversions C R Design Services
98 Garage Conversion Ideas In 2022 Small House Plans House Plans House Floor Plans
